Działka na sprzedaż Wolin, Kołczewo

415.00 m²
420,00 zł/m2
TOH-GS-40
Oblicz ratę kredytu

174 300 zł

Działka na sprzedaż
Oferta specjalna
Video

Szczegóły oferty

Symbol oferty TOH-GS-40
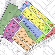
Powierzchnia 415,00 m²
Przeznaczenie działki budowlana
Kształt działki prostokat
Ogrodzenie działki brak
Gaz brak
Dojazd asfalt
Otoczenie działki niezabudowane
Odl. do szkoły [m] 300 m
Pomieszczenia
Paweł Skołuda

Paweł Skołuda

Właściciel biura
Nr licencji: 31055

Napisz wiadomość 17 Ofert

Opis nieruchomości

Zamieszkaj tam, gdzie natura spotyka się z morzem

Wyobraź sobie poranki z widokiem na zieleń, śpiew ptaków i zapach świeżego, morskiego powietrza. Tylko 8 minut rowerem od szerokiej, piaszczystej plaży – w miejscu, gdzie czas płynie wolniej.
 

Oferujemy działki o powierzchni od 415 do 1300 m², położone w otulinie parku krajobrazowego i obszaru Natura 2000. To gwarancja ciszy, czystego powietrza i wyjątkowych widoków. 

Okolica sprzyja aktywnemu wypoczynkowi – w zasięgu spaceru są jeziora idealne do wędkowania, malownicze trasy rowerowe i piesze szlaki prowadzące przez lasy, klify, punkty widokowe oraz pole golfowe. Tu każda pora roku ma swój urok – od letnich kąpieli w morzu po zimowe spacery wzdłuż zamarzniętych zatok.

Teren objęty jest miejscowym planem zagospodarowania terenu - wiesz co możesz wybudować.

Odległość do Morza Bałtyckiego w linii prostej wynosi 2,5 km, a drogą do miejscowości Międzyzdroje 13 km.

Media w zasięgu – prąd dostępny około marca 2026 r.,  w przygotowaniu wodociąg i kanalizacja. Idealne miejsce na Twój całoroczny dom, letnią rezydencję lub inwestycję pod wynajem.
Ceny działek od 300 zł/m2.

Zamień marzenia o domu nad morzem w rzeczywistość – zadzwoń i wybierz swoją działkę

 

Materiał wideo

Lokalizacja nieruchomości

Kalkulatory

Kalkulator kredytowy

Wysokość raty

PLN
%

Kalkulator kosztów

Podatek od czynności cywilno-prawnych

Taksa notarialna
(opłata notarialna)

Wniosek o wpis do KW

VAT od prowizji
agencji nieruchomości

VAT od taksy notarialnej
(opłaty notarialnej)

Prowizja agencji nieruchomości

Wypisy aktu notarialnego

Razem

Uwaga: mogą wystąpić dodatkowe opłaty za założenie księgi wieczystej oraz ustanowienie hipoteki.

PLN
PLN
PLN
PLN
PLN
PLN
%
PLN

Właściciel biura

Proszę wprowadzić poprawne imię i nazwisko
Proszę wprowadzić poprawny numer telefonu
Proszę wprowadzić poprawny adres e-mail
Proszę zaznaczyć wymagane zgody
Rozwiąż równanie:
20 7
Niepoprawny wynik