Mieszkanie na sprzedaż Gliwice, Politechnika

1 pokoj
17.73 m²
11 223,91 zł/m2
parter
TOH-MS-58
Oblicz ratę kredytu

199 000 zł

Mieszkanie na sprzedaż
Nowa oferta

Szczegóły oferty

Symbol oferty TOH-MS-58
Powierzchnia 17,73 m²
Powierzchnia użytkowa [m2] 17,73 m²
Powierzchnia balkonów/tarasów 2,55 m²
Liczba pokoi 1
Liczba sypialni 1
Rodzaj budynku apartamentowiec
Technologia budowlana pustak
Standard
Piętro parter
Liczba pięter w budynku 7
Stan lokalu Do wykończenia
Okna nowe PCV
Instalacje nowe
Balkon brak
Liczba tarasów 1
Rok budowy 2020
Widok na inne budynki
Woda ciepła - miejska
Dojazd asfalt
Otoczenie zabudowa wielorodzinna
Ogrzewanie miejskie
Odległość do komunikacji publicznej [m] 10 m
Odl. do sklepu [m] 400 m
Odl. do szkoły [m] 100 m
Winda tak
Liczba wind 1
Tarasy taras mały
Usytuowanie jednostronne
Pomieszczenia
Powierzchnia pokoi 15,09 m2
Rodzaj kuchni aneks kuchenny - połączony z salonem
Powierzchnia kuchni 15,09 m2
Typ łazienki razem z wc
Liczba łazienek 1
Powierzchnia łazienki [m2] 2,44 m2
Wyposażenie łazienki kabina prysznicowa
Liczba WC 1
Powierzchnia WC 2,44 m2
Liczba przedpokoi 1
Paweł Skołuda

Paweł Skołuda

Właściciel biura
Nr licencji: 31055

Napisz wiadomość 17 Ofert

Opis nieruchomości

Nowa kawalerka z ogródkiem – centrum Gliwic. Idealna inwestycja pod studenta lub najem krótkoterminowy!

Zakup bezpośrednio od dewelopera - bez PCC i prowizji!

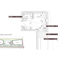
Na sprzedaż nowoczesna kawalerka z ogródkiem, położona w nowo oddanym do użytku budynku zlokalizowanym zaledwie 100 metrów od Politechniki Śląskiej  1 km od gliwickiego Rynku. Mieszkanie znajduje się na parterze jednego z trzech eleganckich, 8-kondygnacyjnych apartamentowców.

Mieszkanie (17,53 m²) obejmuje:

  • Pokój dzienny z aneksem kuchennym – 15,09 m²
  • Łazienkę – 2,44 m²
  • Taras (2,55 m²) z wyjściem do prywatnego ogródka (7,49 m²)

To idealna przestrzeń dla osób szukających nowoczesnego stylu życia w sercu miasta – z dostępem do zieleni i przestrzeni wypoczynkowej.

Dlaczego warto?

Dzięki lokalizacji tuż przy Politechnice Śląskiej, kawalerka jest świetną inwestycją pod studenta lub na najem krótkoterminowy (np. dla pracowników uczelni, uczestników konferencji, turystów). Bliskość komunikacji miejskiej oraz ścisłe centrum Gliwic sprawiają, że to również doskonała opcja dla osób pracujących lub uczących się w mieście.

Atuty inwestycji:

  • Kameralne osiedle – 3 nowoczesne, 8-kondygnacyjne budynki
  • Architektura o podwyższonym standardzie
  • Pralnio-suszarnie do dyspozycji mieszkańców
  • Monitoring 24h i recepcja
  • Eleganckie części wspólne
  • ogrzewanie miejskie (PEC), grzejniki na ścianach

Lokalizacja – ścisłe centrum Gliwic:

  • Politechnika Śląska – ok. 100 m 
  • Rynek – ok. 1 km
  • Lidl – ok. 400 m
  • Przystanek komunikacji miejskiej – ok. 10 m
  • Autostrady A1/A4 – ok. 4 km

Dodatkowe korzyści dla kupującego:

  • Brak prowizji – kupujesz bezpośrednio z rynku pierwotnego
  • Brak podatku PCC (2%)
  • Mieszkanie gotowe do odbioru, stan deweloperski

Zainteresowany? Skontaktuj się z nami telefonicznie lub poprzez formularz kontaktowy. Chętnie odpowiemy na wszystkie pytania i umówimy prezentację!
Wizualizacje mają charakter poglądowy. Ogłoszenie nie stanowi oferty handlowej w rozumieniu Kodeksu Cywilnego.
 

Nie znalazłaś / znalazłeś odpowiedniej oferty dla siebie? Napisz do nas, przygotujemy inne propozycje mieszkań z Gliwic i nie tylko.

Z nami masz wybór.

 

Lokalizacja nieruchomości

Kalkulatory

Kalkulator kredytowy

Wysokość raty

PLN
%

Kalkulator kosztów

Taksa notarialna
(opłata notarialna)

Wniosek o wpis do KW

VAT od prowizji
agencji nieruchomości

VAT od taksy notarialnej
(opłaty notarialnej)

Prowizja agencji nieruchomości

Wypisy aktu notarialnego

Razem

Uwaga: mogą wystąpić dodatkowe opłaty za założenie księgi wieczystej oraz ustanowienie hipoteki.

PLN
PLN
PLN
PLN
PLN
%
PLN

Właściciel biura

Proszę wprowadzić poprawne imię i nazwisko
Proszę wprowadzić poprawny numer telefonu
Proszę wprowadzić poprawny adres e-mail
Proszę zaznaczyć wymagane zgody
Rozwiąż równanie:
27 1
Niepoprawny wynik