Mieszkanie na sprzedaż Łódź, Śródmieście

2 pokoje
33.37 m²
10 758,17 zł/m2
1 piętro
TOH-MS-62
Oblicz ratę kredytu

359 000 zł

Mieszkanie na sprzedaż
Nowa oferta

Szczegóły oferty

Symbol oferty TOH-MS-62
Powierzchnia 33,37 m²
Powierzchnia użytkowa [m2] 33,37 m²
Powierzchnia balkonów/tarasów 13,42 m²
Liczba pokoi 2
Rodzaj budynku apartamentowiec
Technologia budowlana beton, cegła
Standard
Piętro 1
Liczba pięter w budynku 5
Stan lokalu Do wykończenia
Mies. czynsz admin. 500 PLN
Okna nowe PCV
Instalacje nowe
Balkon jest
Liczba balkonów 2
Rok budowy 2026
Plac zabaw tak
Gaz brak
Woda ciepła - miejska
Dojazd asfalt
Otoczenie zabudowa wielorodzinna
Ogrzewanie miejskie
Umeblowanie puste
Odległość do komunikacji publicznej [m] 300 m
Winda tak
Usytuowanie jednostronne
Drzwi antywłamaniowe tak
Przystosowania dla niepełnosprawnych tak
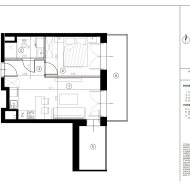
Pomieszczenia
Paweł Skołuda

Paweł Skołuda

Właściciel biura
Nr licencji: 31055

Napisz wiadomość 22 Ofert

Opis nieruchomości

Biuro nieruchomości To House oferuje na sprzedaż 2 pokojowe mieszkanie o powierzchni 33,37 m², z dwoma balkonami o łącznej powierzchni 13,42 m2.
Mieszkanie znajduje się w nowoczesnej inwestycji NOW dewelopera OKAM, okna posiadają widok na wewnętrzny dziedziniec.
Deweloper posiada w swojej ofercie mieszkania droższe o około 2000 zł/m2!
Zatem nasza oferta jest o około 60 000 zł korzystniejsza. Posiadamy w ofercie paczkę mieszkań, w cenie niższej niż u dewelopera.
Zadzwoń po szczegóły.

Projekt o nazwie NOW zlokalizowany jest w śródmieściu Łodzi przy ul. Dowborczyków 18. Termin ukończenia budowy deweloper planuje na II kwartał 2026 r. 

Mieszkanie znajduje się na I piętrze 5 piętrowego budynku. 
W skład mieszkania wchodzi: salon z aneksem kuchennym (16,68 m2),
sypialnia (9,80 m2),
łazienka (3,64 m2),
przedpokój (3,25 m2).

Do mieszkania przynależy balkon (8,0 m2) oraz loggia (5,42 m2) o łącznej powierzchni 13,42 m² – idealna przestrzeń do wypoczynku. Przemyślany rozkład pozwala na elastyczną aranżację wnętrza. Okna skierowane są na wschód.

Osiedle jest ogrodzone płotem i posiada kontrolę dostępu. Powstanie tu:

  • reprezentacyjne Lobby
  • taras na dachu
  • strefa fitness
  • wypożyczalnia rowerów
  • street workout
  • wypożyczalnia hulajnóg

Inwestycja posiada doskonałą lokalizację. W najbliższej okolicy znajdują się:

  • przystanek autobusowy 300 m,
  • przystanek tramwajowy 300 m,
  • dworzec Łódź Fabryczna 850 m,
  • ulica Piotrkowska 1 km,

Cena mieszkania wynosi 359 000 zł brutto

Forma sprzedaży to cesja praw i obowiązków z umowy deweloperskiej. Przy zawarciu umowy cesji pobierany jest podatek PCC w wysokości 1% od kwoty cesji (obecnie liczony nie od całej ceny mieszkania). Pomagamy w przygotowaniu formalności.
Harmonogram płatności do dewelopera to 30/70.
Do ceny należy doliczyć wynagrodzenie dla biura nieruchomości.

Mieszkanie będzie wykończone w stanie deweloperskim.
Załączone wizualizacje wnętrza, to przykładowe wizualizacje innej z naszych realizacji.
Posiadamy w ofercie wykończenie mieszkania pod klucz oraz pomoc w uzyskaniu finansowania.

W razie pytań chętnie służę pomocą.

POSIADAMY W OFERCIE PEŁNĄ OFERTĘ TEJ INWESTYCJI OD DEWELOPERA

Jesteśmy zewnętrznym biurem sprzedaży deweloperów.
Nie znalazłaś / znalazłeś odpowiedniej dla siebie oferty?
Napisz do nas, przygotujemy inne propozycje mieszkań z Łodzi i nie tylko.

To House. Z nami masz wybór.

Lokalizacja nieruchomości

Kalkulatory

Kalkulator kredytowy

Wysokość raty

PLN
%

Kalkulator kosztów

Taksa notarialna
(opłata notarialna)

Wniosek o wpis do KW

VAT od prowizji
agencji nieruchomości

VAT od taksy notarialnej
(opłaty notarialnej)

Prowizja agencji nieruchomości

Wypisy aktu notarialnego

Razem

Uwaga: mogą wystąpić dodatkowe opłaty za założenie księgi wieczystej oraz ustanowienie hipoteki.

PLN
PLN
PLN
PLN
PLN
%
PLN

Podobne oferty

Nowa oferta

Mieszkanie na sprzedaż

Łódź, Śródmieście

2 pokoje 33 m2 10 793,55 zł/m2
Nowa oferta

Właściciel biura

Proszę wprowadzić poprawne imię i nazwisko
Proszę wprowadzić poprawny numer telefonu
Proszę wprowadzić poprawny adres e-mail
Proszę zaznaczyć wymagane zgody
Rozwiąż równanie:
30 8
Niepoprawny wynik