Mieszkanie na sprzedaż Katowice, Centrum

5 pokoi
195.00 m²
18 911,11 zł/m2
2 piętro
TOH-MS-46
Oblicz ratę kredytu

3 687 667 zł

Mieszkanie na sprzedaż
Bez prowizji

Szczegóły oferty

Symbol oferty TOH-MS-46
Powierzchnia 195,00 m²
Powierzchnia balkonów/tarasów 67,25 m²
Liczba pokoi 5
Rodzaj budynku apartamentowiec
Technologia budowlana beton, cegła
Standard
Piętro 2
Liczba pięter w budynku 11
Stan lokalu Do wykończenia
Instalacje nowe
Balkon taras
Liczba balkonów 1
Rok budowy 2024
Widok na inne budynki
Dojazd asfalt
Otoczenie zabudowa wielorodzinna
Umeblowanie puste
Odległość do komunikacji publicznej [m] 200 m
Odl. do sklepu [m] 250 m
Winda tak
Tarasy taras duży
Usytuowanie jednostronne
Przystosowania dla niepełnosprawnych tak
Pomieszczenia
Paweł Skołuda

Paweł Skołuda

Właściciel biura
Nr licencji: 31055

Napisz wiadomość 23 Ofert

Opis nieruchomości

Nowy apartament 5 pokojowy z loggią w centrum Katowic.

Kupujesz bezpośrednio od dewelopera - bez prowizji i PCC! 


Przedstawiamy funkcjonalne mieszkanie typu studio o powierzchni 195,32 m², usytuowane na 7 piętrze budynku, z loggią.
Apartamentowiec został oddany do użytkowania.

Lokalizacja:
Centrum Katowic, inwestycja położona w nowej tkance miejskiej, z nową infrastrukturą drogową. Inwestycja położona jest 600 m od katowickiego Spodka.


Inwestycja:
- Oddana do użytkowania
- Nowoczesna zabudowa 2 budynków o 9 i 11 piętrach
- efektowne lobby z poczekalnią dla gości
- coworking z czytelnią
- pokój gier
- sala kinowa
- sala fitness
- sauna
- sala do jogi
budynek z windą i halą garażową


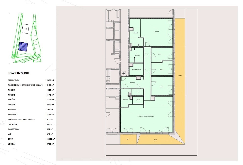
Układ mieszkania (195,32 m²):
Przedpokój 23.50 m2
Salon z aneksem 61.77 m2
Pokój 33.10 m2
Pokój 11.34 m2
Pokój 11.13 m2
Pokój 15.57 m2
Łazienka 11.86 m2
Łazienka 7.83 m2
Toaleta 3.10 m2
Garderoba 6.82 m2
Spiżarnia 3.20 m2
Pralnia 6.10 m2
Sypialnia 14.88 m2
Loggia 67.25 m2


Dodatkowe informacje:
- Jesteśmy zewnętrznym biurem sprzedaży dewelopera
- Kupujący nie płaci prowizji
- Brak podatku PCC (2%)

Zainteresowany?

Zadzwoń pod numer 503 363 632 lub napisz przez formularz kontaktowy. Chętnie odpowiemy na wszystkie pytania i umówimy prezentację!

Wizualizacje mają charakter poglądowy. Mieszkanie jest w stanie deweloperskim.
Ogłoszenie nie stanowi oferty handlowej w rozumieniu Kodeksu Cywilnego.

Nie znalazłaś / znalazłeś odpowiedniej dla siebie oferty?
Napisz do nas, przygotujemy inne propozycje mieszkań z Gliwic i nie tylko.

Z Nami masz wybór!

Lokalizacja nieruchomości

Kalkulatory

Kalkulator kredytowy

Wysokość raty

PLN
%

Kalkulator kosztów

Podatek od czynności cywilno-prawnych

Taksa notarialna
(opłata notarialna)

Wniosek o wpis do KW

VAT od prowizji
agencji nieruchomości

VAT od taksy notarialnej
(opłaty notarialnej)

Prowizja agencji nieruchomości

Wypisy aktu notarialnego

Razem

Uwaga: mogą wystąpić dodatkowe opłaty za założenie księgi wieczystej oraz ustanowienie hipoteki.

PLN
PLN
PLN
PLN
PLN
PLN
%
PLN

Właściciel biura

Proszę wprowadzić poprawne imię i nazwisko
Proszę wprowadzić poprawny numer telefonu
Proszę wprowadzić poprawny adres e-mail
Proszę zaznaczyć wymagane zgody
Rozwiąż równanie:
14 4
Niepoprawny wynik