Mieszkanie na sprzedaż Katowice, Centrum

1 pokoj
26.39 m²
15 854,41 zł/m2
2 piętro
TOH-MS-46
Oblicz ratę kredytu

418 398 zł

Mieszkanie na sprzedaż
Bez prowizji

Szczegóły oferty

Symbol oferty TOH-MS-46
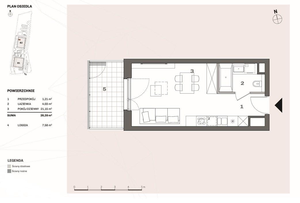
Powierzchnia 26,39 m²
Powierzchnia użytkowa [m2] 26,39 m²
Powierzchnia balkonów/tarasów 7,58 m²
Liczba pokoi 1
Rodzaj budynku apartamentowiec
Technologia budowlana beton, cegła
Standard
Piętro 2
Liczba pięter w budynku 11
Stan lokalu Do wykończenia
Instalacje nowe
Balkon loggia
Liczba balkonów 1
Rok budowy 2024
Widok na inne budynki
Dojazd asfalt
Otoczenie zabudowa wielorodzinna
Umeblowanie puste
Odległość do komunikacji publicznej [m] 200 m
Odl. do sklepu [m] 250 m
Winda tak
Usytuowanie jednostronne
Przystosowania dla niepełnosprawnych tak
Pomieszczenia
Paweł Skołuda

Paweł Skołuda

Właściciel biura
Nr licencji: 31055

Napisz wiadomość 15 Ofert

Opis nieruchomości

Nowe mieszkanie typu studio z loggią, w centrum Katowic.

Kupujesz bezpośrednio od dewelopera - bez prowizji i PCC! 


Przedstawiamy funkcjonalne mieszkanie typu studio o powierzchni 26,39 m², usytuowane na 2 piętrze budynku, z loggią.
Apartamentowiec został oddany do użytkowania.

Lokalizacja:
Centrum Katowic, inwestycja położona w nowej tkance miejskiej, z nową infrastrukturą drogową. Inwestycja położona jest 600 m od katowickiego Spodka.


Inwestycja:
- Oddana do użytkowania
- Nowoczesna zabudowa 2 budynków o 9 i 11 piętrach
- efektowne lobby z poczekalnią dla gości
- coworking z czytelnią
- pokój gier
- sala kinowa
- sala fitness
- sauna
- sala do jogi
budynek z windą i halą garażową


Układ mieszkania (26,39 m²):

- Pokój z aneksem kuchennym – 21,15 m²
- Łazienka – 4,03 m²

- Przedpokój  – 1,21 m²

Loggia 7,58 m2

Dodatkowe informacje:
- Jesteśmy zewnętrznym biurem sprzedaży dewelopera
- Kupujący nie płaci prowizji
- Brak podatku PCC (2%)

Zainteresowany?

Zadzwoń pod numer 503 363 632 lub napisz przez formularz kontaktowy. Chętnie odpowiemy na wszystkie pytania i umówimy prezentację!

Wizualizacje mają charakter poglądowy. Mieszkanie jest w stanie deweloperskim.
Ogłoszenie nie stanowi oferty handlowej w rozumieniu Kodeksu Cywilnego.

Nie znalazłaś / znalazłeś odpowiedniej dla siebie oferty?
Napisz do nas, przygotujemy inne propozycje mieszkań z Gliwic i nie tylko.

Z Nami masz wybór!

Lokalizacja nieruchomości

Kalkulatory

Kalkulator kredytowy

Wysokość raty

PLN
%

Kalkulator kosztów

Podatek od czynności cywilno-prawnych

Taksa notarialna
(opłata notarialna)

Wniosek o wpis do KW

VAT od prowizji
agencji nieruchomości

VAT od taksy notarialnej
(opłaty notarialnej)

Prowizja agencji nieruchomości

Wypisy aktu notarialnego

Razem

Uwaga: mogą wystąpić dodatkowe opłaty za założenie księgi wieczystej oraz ustanowienie hipoteki.

PLN
PLN
PLN
PLN
PLN
PLN
%
PLN

Podobne oferty

Bez prowizji

Mieszkanie na sprzedaż

Katowice, Centrum

2 pokoje 45 m2 11 920,00 zł/m2
Bez prowizji

Właściciel biura

Proszę wprowadzić poprawne imię i nazwisko
Proszę wprowadzić poprawny numer telefonu
Proszę wprowadzić poprawny adres e-mail
Proszę zaznaczyć wymagane zgody
Rozwiąż równanie:
12 7
Niepoprawny wynik